Vés al contingut principal

Configuració de les galetes

Fem servir galetes per assegurar les funcionalitats bàsiques del lloc web i per a millorar la teva experiència en línia. Pots configurar i acceptar l'ús de galetes, i modificar les teves opcions de consentiment en qualsevol moment.

Essencials

Preferències

Analítiques i estadístiques

Màrqueting

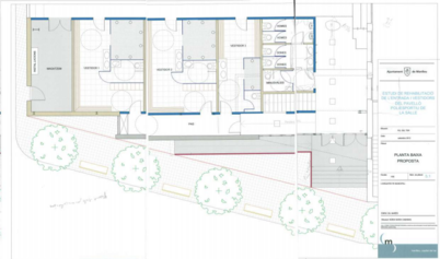
Rehabilitació del pavelló poliesportiu de la Salle

Avatar: Manlleu amb la juventut Manlleu amb la juventut

Es proposa l'enderrocament de l'estructura actual dels vestidors i la seva reposició juntament amb una remodelació de la part de l'entrada al Pavelló, edificant una primera planta sobre els vestidors que pogués ser una Sala Polivalent o un gimnàs d'accés directe des del carrer per poder ser utilitzat en actes del municipi. Se'n beneficiaran les diferents entitats esportives de Manlleu (que el fan servir de dilluns a divendres de 5 a 10 del vespre) i les persones que assiteixen a diverses activitats del municipi organitzades en cap de setmana (sobretot quan fa mal temps). Ubicació: La Salle Manlleu
Plànols_projecte_vestidors.pdf
Descarregar fitxer

Confirmar

Si us plau, inicia la sessió

La contrasenya és massa curta.

Compartir